Vilniaus m. sav., Naujininkai, Eišiškių pl.
Сдаётся в аренду
-
Тип объектаСдаётся в аренду
-
Общая площадь80.00 m²
-
Комнаты3
-
Высокий3 из 3
-
Год постройки2010
-
Тип отопленияЦентральное отопление с термостатом
-
Ссылка
Об этом объкте
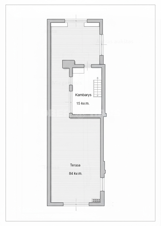
Сдается в аренду прекрасная трехкомнатная квартира с большой террасой площадью 84 квадратных метра в закрытом жилом комплексе в Наужининкае, на площади Эйшишки. В комплексе есть закрытая природная зона и детские площадки. Имеется общая сауна, которой могут пользоваться все жители комплекса. Квартира расположена на третьем этаже трехэтажного здания высотой две тысячи десятoго года построики. Полностью оборудовона, со всей мебелью и бытовой техникой. Есть камин, газовое, экономичное отопление, восточная сторона. Застекленный балкон. Рядом аэропорт. Десять минут езды до Соборной площади. Удобный доступ ко всем районам города по объездной дороге. Квартира сдается с парковочным местом во дворе. ОБЩАЯ ИНФОРМАЦИЯ Площадь квартиры – 80 кв. м.; Адрес квартиры – площадь Эйшишки, ул. 45; Тип дома – кирпичный; Этаж квартиры – 3 из 3; Год постройки – 2010. КОММУНИКАЦИИ Отопление – центральное, регулируемое; Интернет (оптоволокно Telia); Кабельное телевидение (Telia); Водоснабжение - городское. ОТДЕЛКА ПОМЕЩЕНИЙ Окна - пластиковые; Полы - паркет, плитка; Стены - окрашенные; Потолки - окрашенные; Входные двери - бронированные; Межкомнатные двери - облицованные шпоном. ДРУГАЯ ИНФОРМАЦИЯ Запираемая, аккуратная лестница; Большая терраса 84 кв. м; Застекленный балкон.