Atgal į paiešką

Vilniaus m. sav., Mažieji Gulbinai, Netimero g.

Nuomojamas namas

Vilniaus m. sav., Mažieji Gulbinai, Netimero g.

Nuomojamas namas

1 700
  • Objekto tipas
    Nuomojamas namas
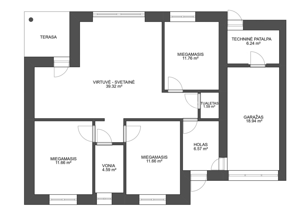
  • Visas plotas
    112.33 m²
  • Sklypas
    5.00 a
  • Kambarių
    4
  • Statybos metai
    2026
  • Šildymo tipas
    Aeroterminis
  • Nuoroda

Apie šį turtą

Mažieji Gulbinai – jaukus ir ramus gyvenamųjų namų kvartalas, vertinamas dėl savo išskirtinės lokacijos gamtos apsuptyje. Vos ~900 metrų iki Gulbino ežero ir apie 1,8 km iki Žaliųjų ežerų suteikia galimybę mėgautis poilsiu bei aktyviu laisvalaikiu visais metų laikais. Kvartale vyrauja individualūs namai, todėl tai puikus pasirinkimas ieškantiems privatumo ir ramybės, išlaikant patogų susisiekimą su miestu – tiek automobiliu, tiek viešuoju transportu (artimiausia stotelė ~300 m).

2026 metais įrengtas, modernus ir funkcionaliai suplanuotas namas sukurtas patogiam šeimos gyvenimui. Apgalvotas išplanavimas užtikrina erdvės pojūtį ir komfortą – trys atskiri miegamieji, du sanitariniai mazgai, erdvi ir šviesi svetainė, sujungta su virtuve bei išėjimu į terasą. Tai erdvė, kurioje natūraliai susilieja kasdienis gyvenimas ir poilsis. Papildomą patogumą suteikia garažas bei talpi techninė patalpa.

Namui priklauso 5 a sklypas su privačiu, erdviu vidiniu kiemu ir terasa – ideali vieta rytinei kavai, jaukiems vakarams ar laikui su šeima bei draugais. Aptverta teritorija užtikrina saugumą ir privatumą, o aplinkinė gamta leidžia mėgautis ramybe kasdien.

Vizualizacijoje matoma veja yra suformuota naudojant AI įrankį – realiai sklype ji sužaliuos birželio–liepos mėnesiais.

PRIVALUMAI:

• 3 patogios parkavimo vietos: garaže ir prie namo
• Aukšta A+ energinė klasė – mažesnės išlaikymo sąnaudos
• Erdvus, privatus vidinis kiemas poilsiui ir laisvalaikiui
• 3 atskiri miegamieji – komfortiškas išplanavimas šeimai
• 2 sanitariniai mazgai – daugiau patogumo kasdienybėje
• Įrengta signalizacija ir vaizdo kameros – saugumui užtikrinti
• 100 % registruotas baigtumas

BENDRA INFORMACIJA:

• Plotas: 112,33 kv.m
• Šildymas: oras–vanduo sistema, grindinis šildymas visame name
• Kondicionavimas: oras–oras sistema
• Vandentiekis: vietinis gręžinys
• Kanalizacija: vietinė, įrengti valymo įrenginiai
• Šviesolaidinis internetas – patogiam darbui ir laisvalaikiui
• Pamatai: apšiltinti polistirenu
• Sienos: mūrytos iš dujų silikato blokelių, apšiltintos (25 cm)
• Fasadas: klinkeris – ilgaamžiškumas bei estetika
• Stogas: skardinis
• Elektros įvadas: 11 kW
• Įrengti vandens nugeležinimo ir nukalkinimo filtrai
• Namai sublokuoti per garažą – daugiau privatumo
• Aptverta teritorija – saugi ir tvarkinga aplinka
• Puikiai apšviesta gatvė iki pat kiemo

VIETA IR INFROSTRUKTŪRA

• Aptverta teritorija – saugi ir tvarkinga aplinka
• Vos ~300 m iki artimiausios autobusų stotelės
• Rami, žalia aplinka – gyvenimas gamtos apsuptyje
• Vos ~900 m iki Gulbino ežero
• Apie ~1,8 km iki Žaliųjų ežerų
• Patogus susisiekimas su Vilnius centru – ~20 min iki Konstitucijos pr.
• Didžiosios parduotuvės – vos 2 km spinduliu
• Šiaurės licėjus – vos už 3,5 km

NUOMOS SĄLYGOS

• Nuomos kaina: 1700 €/mėn
• Depozitas: 2 mėn.
• Nuomos laikotarpis: nuo 1 metų
• Be papildomų agentūros mokesčių

Nuomojamas su visais baldais – galima įsikelti ir gyventi iš karto.


Panašūs objektai

Visi objektai Visi
+
Būtinieji
Šie slapukai yra būtini, kad veiktų svetainė, mūsų sistemose negali būti išjungti.
Funkciniai
Šie slapukai suteikia galimybę pagerinti funkcionalumą ir suasmeninimą, pavyzdžiui, jie pagerina pateikiamo turinio formatą ir formą, nustato šrifto dydį ar svetainės elementų pozicijas. Jie gali būti įdiegti mūsų arba kitų tiekėjų, kurie teikia į mūsų puslapius įdėtas paslaugas. Jei neleisite šiems slapukams veikti, kai kurios ar visos minėtos funkcijos negalės tinkamai veikti. Funkciniai slapukai šiuo metu nenaudojami.
Statistiniai
Šie slapukai leidžia mums skaičiuoti apsilankymus ir lankytojų srauto šaltinius, kad galėtume matuoti ir gerinti svetainės veikimą. Pvz., pateikti skaitomiausią turinį pagal rubrikas, kategorijas. Visa šių slapukų informacija yra apibendrinta, todėl anoniminė. Jei neleisite šiems slapukams veikti, nežinosime, kad lankėtės mūsų puslapyje. Statistiniai slapukai šiuo metu nenaudojami.
Reklaminiai
Šiuos slapukus per mūsų svetainę naudoja mūsų reklamos partneriai. Tos bendrovės gali juos naudoti jūsų interesų profiliui formuoti ir jums tinkamoms reklamoms kitose svetainėse parinkti. Jie veikia unikaliai identifikuodami jūsų naršyklę ir įrenginį. Jei neleisite šiems slapukams veikti, įvairiose kitose svetainėse nematysite mūsų tikslingai Jums skirtų pasiūlymų. Reklaminiai slapukai šiuo metu nenaudojami.
Sutinku su visais Nesutinku su visais

Mail sent!

This site is registered on wpml.org as a development site. Switch to a production site key to remove this banner.